リノベーション工事|上越市
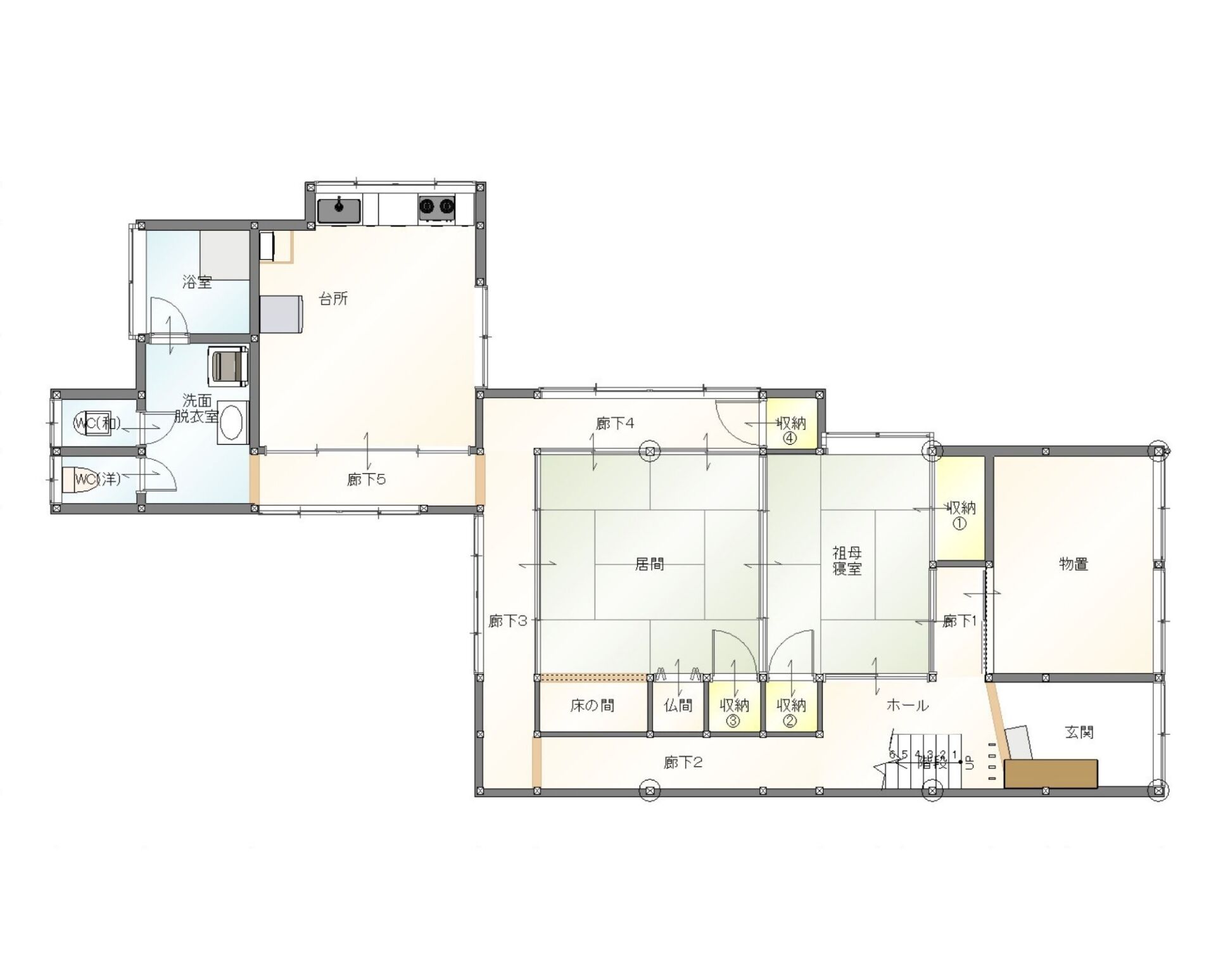
BEFORE
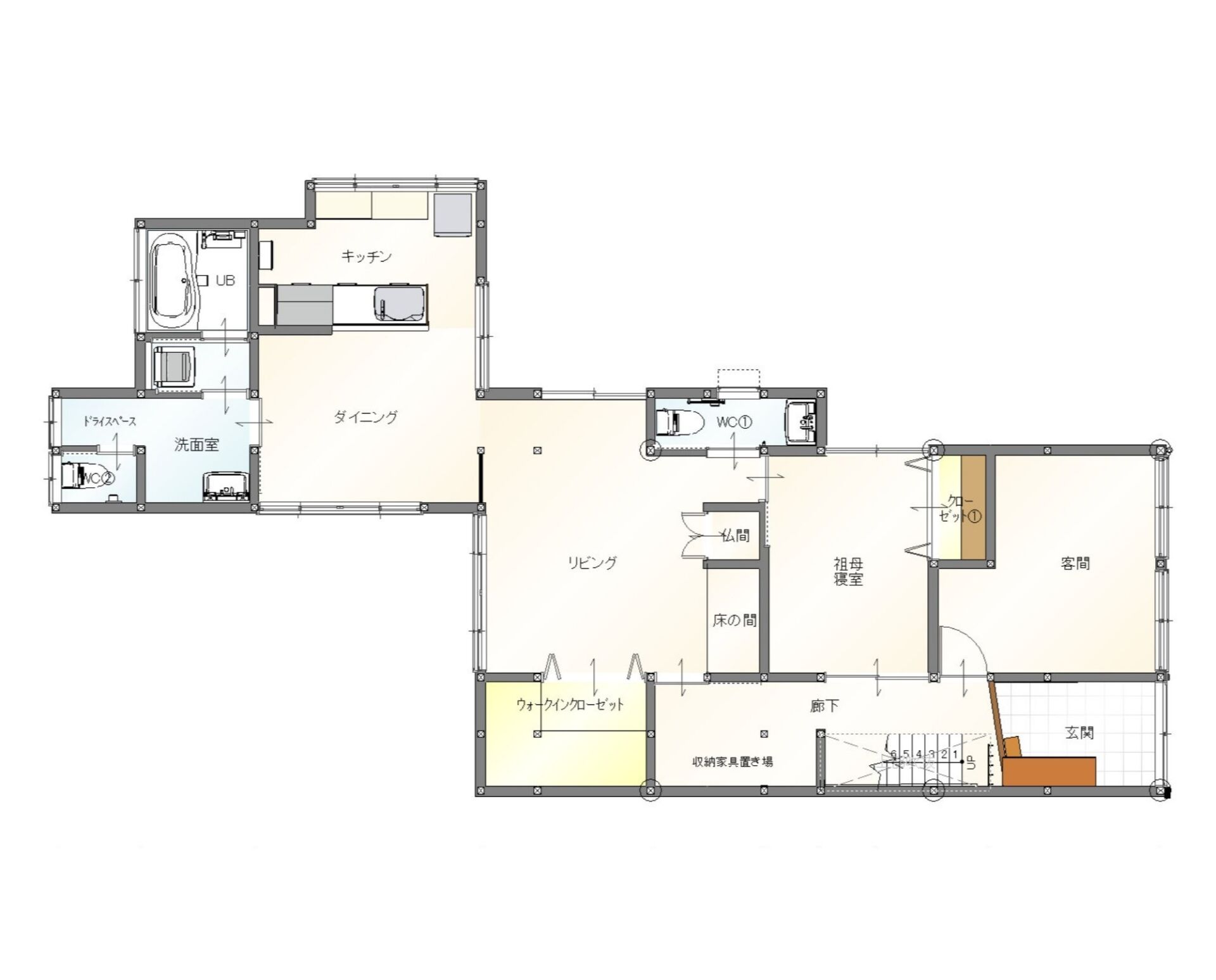
AFTER
BEFORE
AFTER
BEFORE
AFTER
BEFORE
AFTER
AFTER
AFTER
AFTER
AFTER
リフォーム箇所
・お風呂
・キッチン
・トイレ
・カーポート
・玄関、窓
・内装工事、間取り変更 など
・キッチン
・トイレ
・カーポート
・玄関、窓
・内装工事、間取り変更 など
工期
約4ヶ月
費用
約2,000万円
リフォームのきっかけ
これからもお母様と新しい環境で快適に暮らしていきたいという想いがきっかけでした。
普段くつろいでいるリビングから玄関までの動線が歩きづらく、日々の移動に不便さを感じておられました。
そこで、水回りだけでなく住まい全体を見直し、安心して暮らせる住環境へとリフォームすることになりました。
普段くつろいでいるリビングから玄関までの動線が歩きづらく、日々の移動に不便さを感じておられました。
そこで、水回りだけでなく住まい全体を見直し、安心して暮らせる住環境へとリフォームすることになりました。
工事内容
キッチン・浴室・トイレなどの水回りを一新し、使い勝手とお手入れのしやすさを向上。
あわせてカーポートを設置し、雨や雪の日でも安心して車の乗り降りが出来るようにしました。
収納面では大容量のウォークインクローゼットを新設し、住まい全体がすっきり片付く空間に。
また、リビングから玄関までの動線を見直し、手すりの設置など各所にバリアフリー対応を施しました。
安全性と快適性を兼ね備えた、これからの暮らしに寄り添う住まいへと生まれ変わりました。
あわせてカーポートを設置し、雨や雪の日でも安心して車の乗り降りが出来るようにしました。
収納面では大容量のウォークインクローゼットを新設し、住まい全体がすっきり片付く空間に。
また、リビングから玄関までの動線を見直し、手すりの設置など各所にバリアフリー対応を施しました。
安全性と快適性を兼ね備えた、これからの暮らしに寄り添う住まいへと生まれ変わりました。
お問い合わせ